atelierwohnung Tetenbüll
Fereienwohnung Ipsen - Tetenbüll
Atelierwohnung Ipsen - Eiderstedt / Nordfriesland
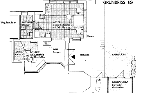
exclusive Ferienwohnung in Tetenbüll - Grundriss Erdgeschoss
Erdgeschoss zurück
Obergeschoss